欢迎您访问"硬质快速门厂家"企业官方网站!
十四年高品质工业门制造商出口近70多个国家和地区
您现在的位置:首页-产品中心-欧式卷帘门
无机特级防火卷帘门
适用于不设自动喷淋系统的场合,节能,节省投资 SERANG西朗无机特级防火卷帘门,具有重量轻、减轻对建筑结构的负载;隔热性能好,价格低等优点。具有广阔的发展前景。 技术参数: 1、背火面平均温升≤140℃,单点最高温升≤180℃,耐火极限:≥3.0h; 2、启闭速度:2-9m/min; 3、漏烟量不大于0.2m3/m2min;
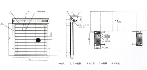
无机布防火卷帘门示意图
无机特级防火卷帘门实拍图